
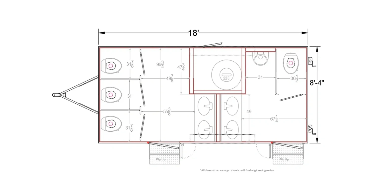
Custom built in 2023, our luxury trailer has all the most up to date amenities for your event. It offers an attractive space with unique features that will elevate any type of outdoor event. With a total of four private, fully enclosed toilets and a urinal for the men, your guests will feel totally comfortable.

Our interior design is trendy yet sophisticated. Your guests will not feel as though they are walking into a portable restroom but into an upscale space that is both cozy and visually appealing. Stylish backsplash, full length mirror and neutral colors make this trailer suitable for any occasion.

Upscale Portables is committed to excellence! We want to ensure our small part in your event will be hassle free. Delivery and set up is all on us within a 50 mile radius! We just need a flat area to place the trailer. Off the grid options available as well!
We use cookies to analyze website traffic and optimize your website experience. By accepting our use of cookies, your data will be aggregated with all other user data.